MOBIRISE
Home
Photos
360°
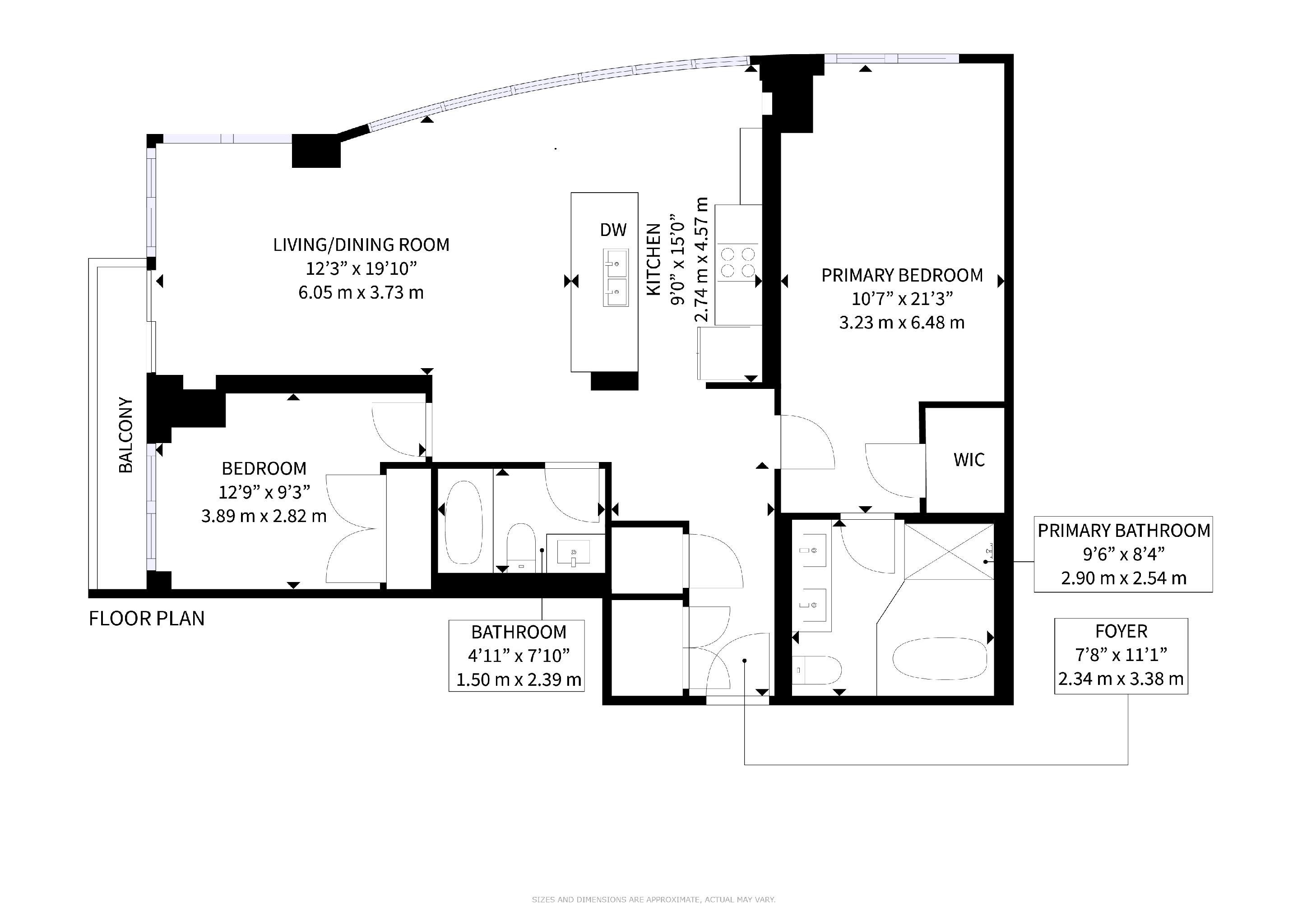
Floorplan
Schools
Map
2207-185 Legion Rd N
Photos
x
Close
Show all photos
360° Virtual Tour
Floorplan
x
Close
Schools
Map
Learn more about this location