915-11 Lee Centre Drive
Scarborough

 Photos
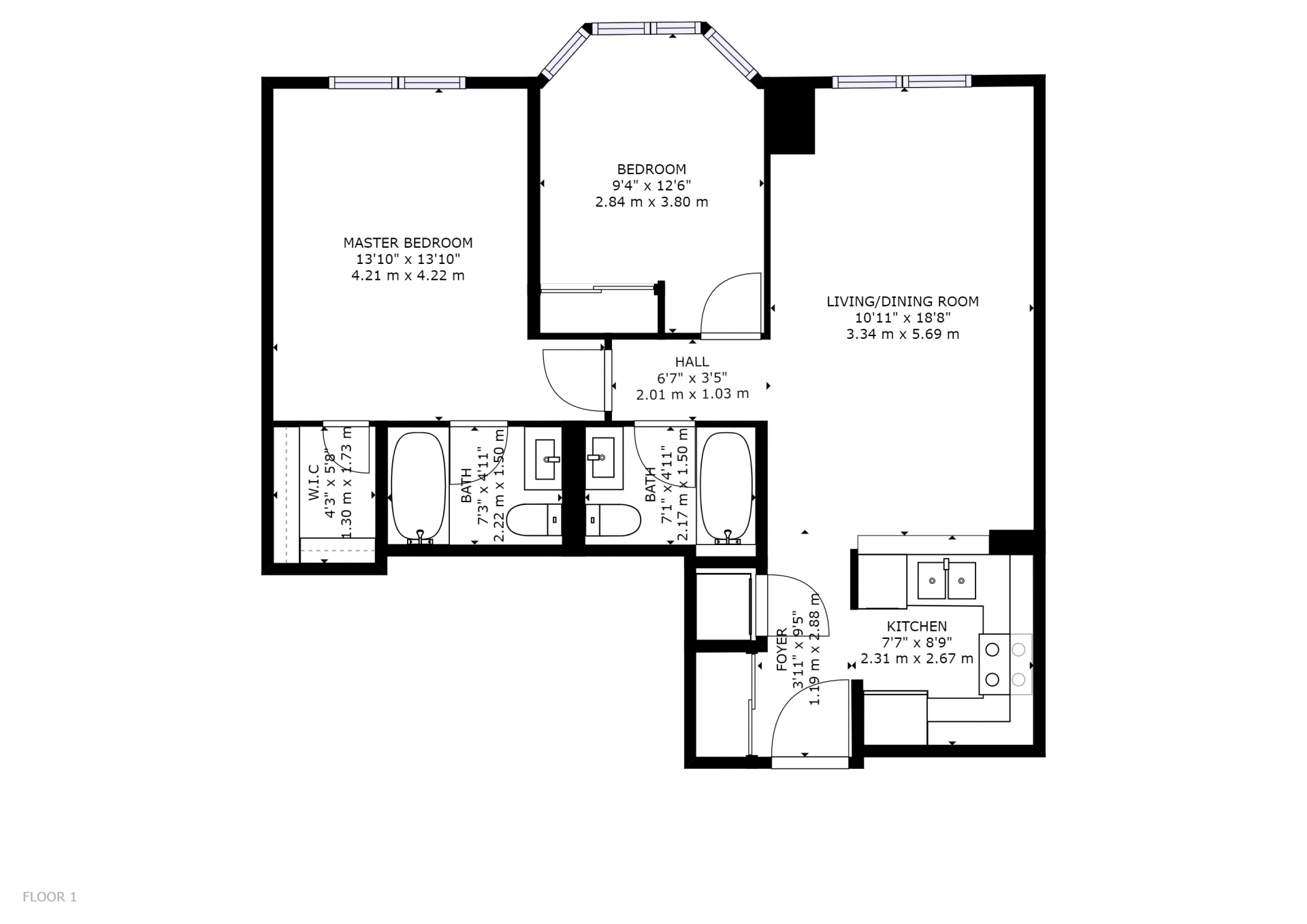
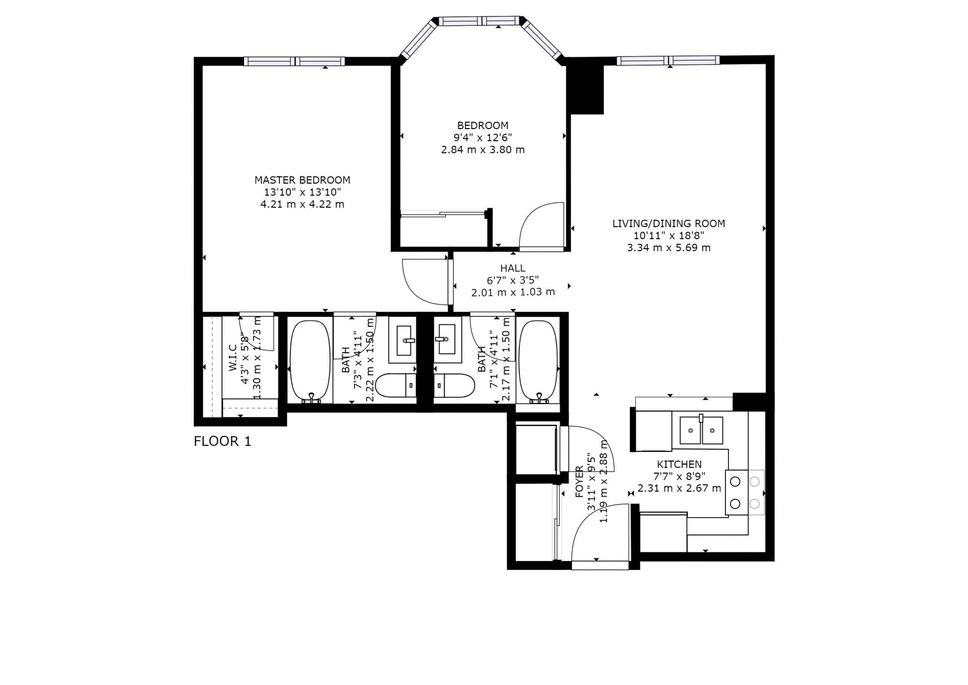
 Floorplan
 Schools
 Map